Skip to content
Search Toggle
Home
Services
Projects
Residential
Agricultural & Commercial
Plans
Genica Concrete
Contact
Menu
Search for:
Submit
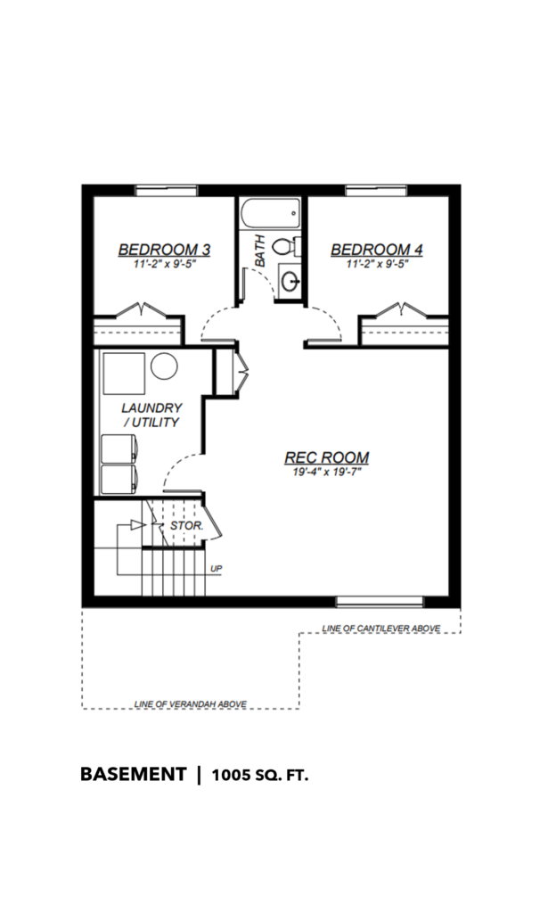
The Elora
Type
Bungalow
Total Square Feet
2041
Bedrooms
4
Bathrooms
3
Garage
None